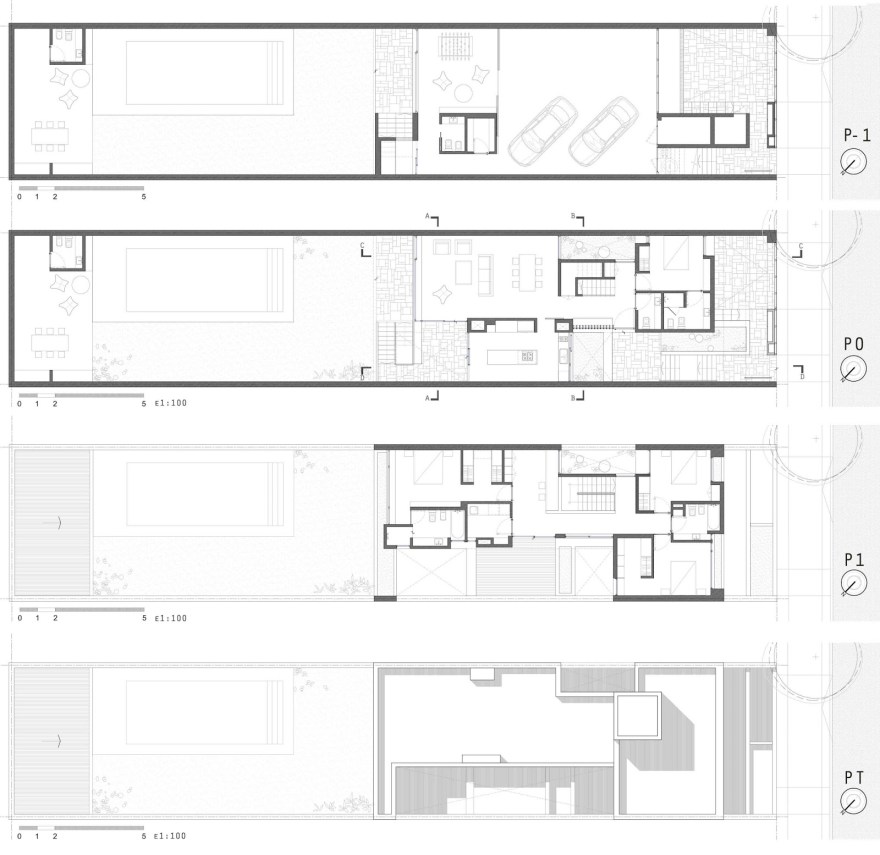
VIVIENDA UNIFAMILIAR
ESTADO: Obra Terminada
ETAPAS REALIZADAS: Proyecto, Dirección y Construcción
AUTORES: Arq. Pablo Phatouros /Arq. Hernán de los Ríos
COLABORADORES: Arq. J. Hernández
UBICACIÓN: RIVADAVIA 2841, Munro, Buenos Aires, Argentina
SUPERFICIE TOTAL: 425 m2













