VIVIENDA UNIFAMILIAR
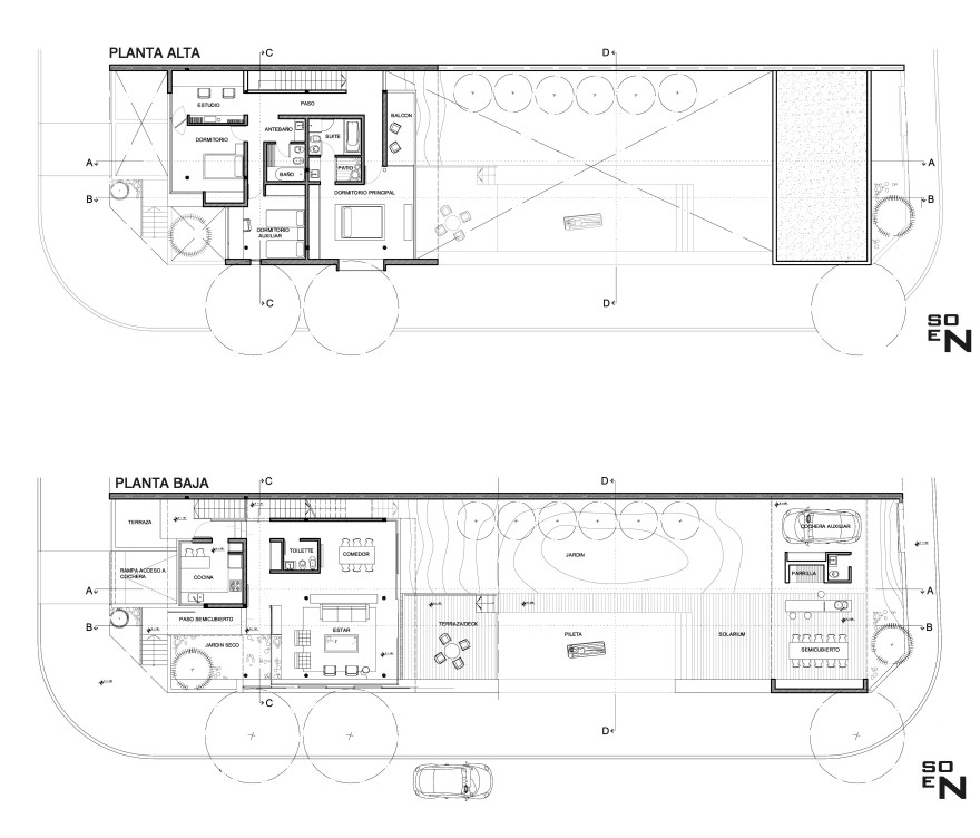
ETAPA REALIZADA: Croquis preliminar y anteproyecto
AUTORES: Arq. Pablo Phatouros / Arq. Guillermo Villamarín
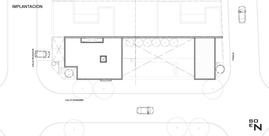
UBICACIÓN: Riobamba y Rivadavia, General San Martín, Buenos Aires, Argentina













Estudio de Arquitectura y Construccion
ETAPA REALIZADA: Croquis preliminar y anteproyecto
AUTORES: Arq. Pablo Phatouros / Arq. Guillermo Villamarín
UBICACIÓN: Riobamba y Rivadavia, General San Martín, Buenos Aires, Argentina












