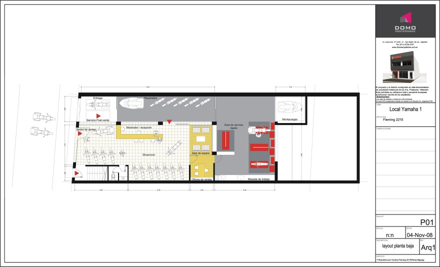
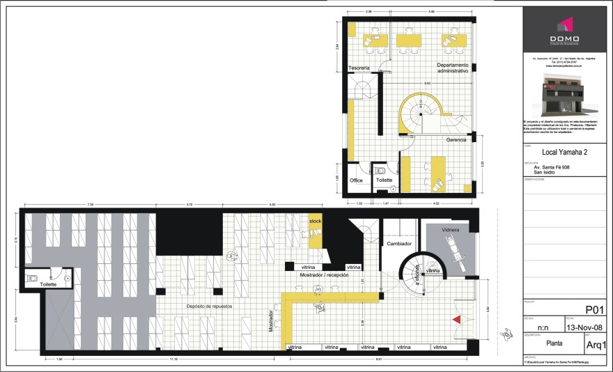
REFUNCIONALICACION LOCALES COMERCIALES Y TALLERES MOTOLANDIA/YAMAHA
ETAPAS REALIZADAS: PROYECTO
AUTORES: Arq. Pablo Phatouros / Arq. Guillermo Villamarín
COLABORADOR: Arq. R. Alegrotti
UBICACIÓN: Casa Central Avda. Santa Fe – Suc. Fleming – Suc. Libertador
AV. FLEMING


AV. SANTA FÉ


AV. LIBERTADOR



