TORRES DE VIVIENDA
ETAPA REALIZADA: Anteproyecto
AUTORES: Arq. Pablo Phatouros / Arq. Guillermo Villamarín / Arq. Hugo Cisternino
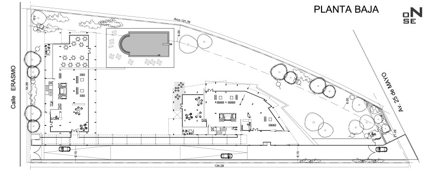
UBICACIÓN: Av. 25 de Mayo y Catalina de Boyle, Genreal San Martín, Buenos Aires, Argentina
SUPERFICIE TOTAL: 21.600 m2











Estudio de Arquitectura y Construccion
ETAPA REALIZADA: Anteproyecto
AUTORES: Arq. Pablo Phatouros / Arq. Guillermo Villamarín / Arq. Hugo Cisternino
UBICACIÓN: Av. 25 de Mayo y Catalina de Boyle, Genreal San Martín, Buenos Aires, Argentina
SUPERFICIE TOTAL: 21.600 m2










