EDIFICIO DE VIVIENDAS EN ESQUINA
ESTADO: Documentación ejecutiva
AUTORES: Arq. Pablo Phatouros
ESTUDIO ASOCIADO: PHI – Arq. Matias Phatouros
COLABORADORES: Arq. Marcos Riemer
UBICACIÓN: Villa Maipu, San Martin, Buenos Aires, Argentina
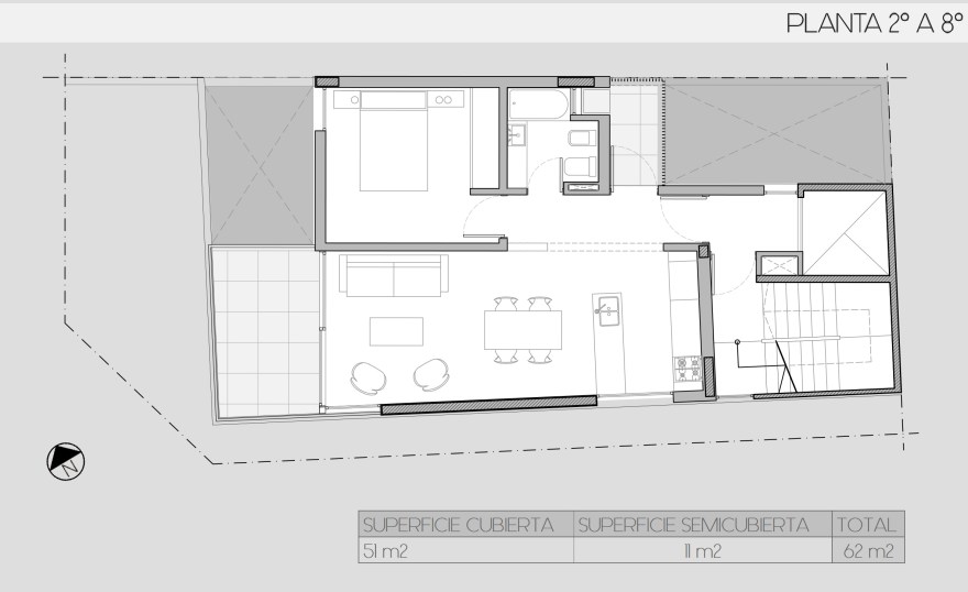
SUPERFICIE TOTAL: 800 m2






