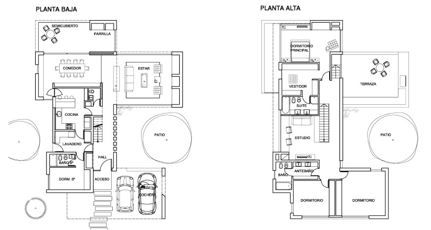
VIVIENDA UNIFAMILIAR de PERIMETRO LIBRE
ETAPA REALIZADA: Croquis preliminar
AUTORES: Arq. Hugo Cisternino / Arq. Pablo Phatouros / Arq. Guillermo Villamarín
UBICACION: Barrio Privado San Isidro Labrador, Benavídez, Buenos Aires, Argentina









Estudio de Arquitectura y Construccion
ETAPA REALIZADA: Croquis preliminar
AUTORES: Arq. Hugo Cisternino / Arq. Pablo Phatouros / Arq. Guillermo Villamarín
UBICACION: Barrio Privado San Isidro Labrador, Benavídez, Buenos Aires, Argentina








