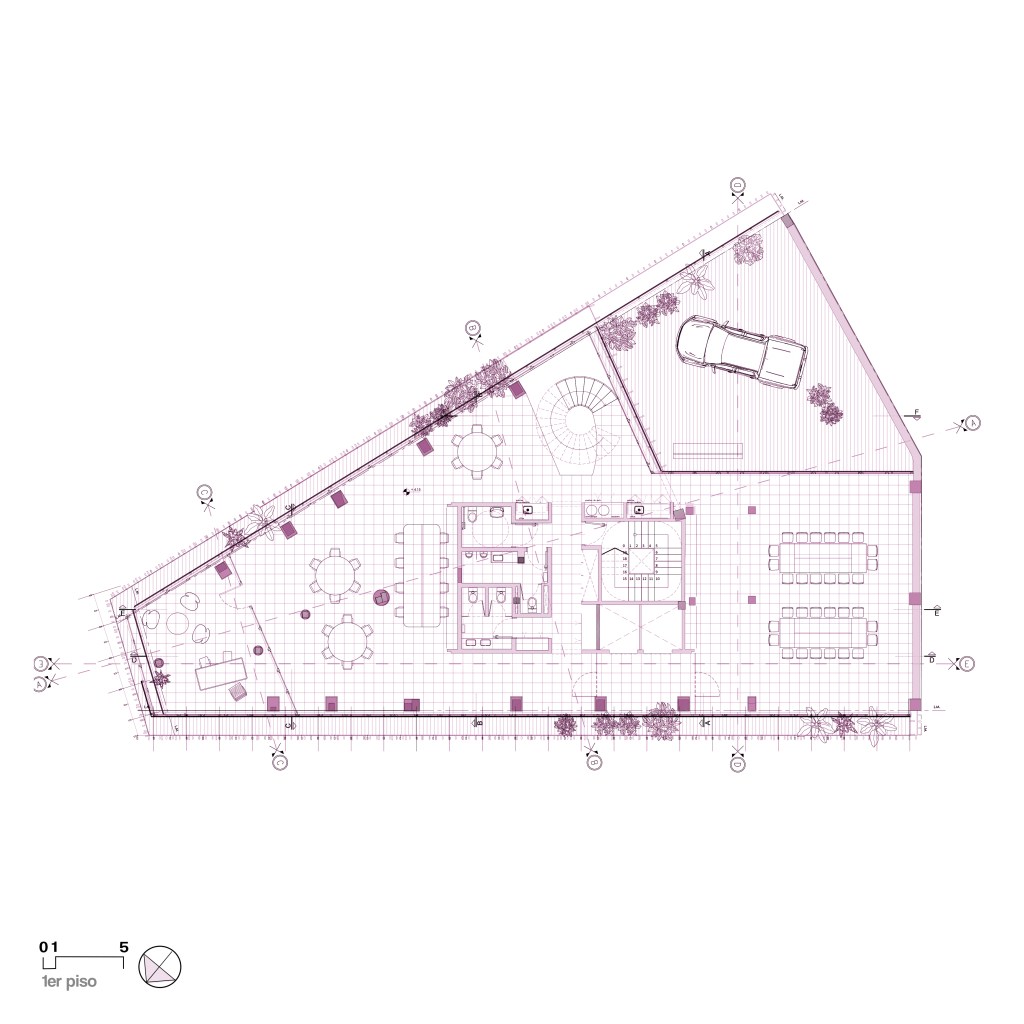
REFUNCIONALIZACION – COMERCIO Y EDIFICIO DE OFICINAS
ESTADO: proyecto en ejecucion
MODALIDAD: Inversión privada
AUTORES: Arq. Pablo Phatouros /Arq. Hernán de los Ríos
COLABORADORES: Arq. Marcus Riemer / Ian Welford
UBICACIÓN: Gral Paz y Avenida San Martin, San Martín, Buenos Aires, Argentina
SUPERFICIE TOTAL: 1500 m2




















