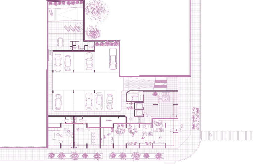
EDIFICIO DE VIVIENDAS EN ESQUINA
ESTADO: anteproyecto
MODALIDAD: Proyecto de Inversión
AUTORES: Arq. Pablo Phatouros /Arq. Hernán de los Ríos
COLABORADORES: Arq. Marcus Riemer / Ian Welford
UBICACIÓN: Perdriel esq. Las Heras, Villa Maipú , San Martín, Buenos Aires, Argentina
SUPERFICIE TOTAL: 3500 m2





